3-Zimmer mit Terrasse und kleinem Garten – ZENTRAL und RUHIG in Laakirchen

PROVISIONSFREI und JETZT mit der noch gültigen Verordnung zusätzlich GELD SPAREN. Unter bestimmten Voraussetzungen vom ENTFALL der GRUNDBUCHEINTRAGUNGSGEBÜHREN profitieren. Weitere Details gerne auf Anfrage oder im Informationsblatt.

Im ruhigen Herzen von Laakirchen werden 14 Wohnungen in Ziegelmassivbauweise errichtet.
Fußläufig ist der Nahversorger Billa und das Zentrum von Laakirchen erreichbar.

Das Projekt umfasst im Detail:
• die Sanierung des bestehendes Wohnhauses mit 4 Wohneinheiten
• den Aufbau auf bestehenden Garagengebäudes mit 1 Wohneinheit
• den Neubau mit 9 Wohneinheiten und 15 Tiefgaragenstellplätzen

Allen Wohneinheiten ist ein Tief- bzw. Garagenplatz (nicht im Kaufpreis inkludiert) zugewiesen. Für Besucher stehen 4 Freistellplätze zur Verfügung. In unmittelbarer Nähe befindet sich ein öffentlicher Spielplatz.

Der BAUSTART erfolgt 09/2025 (beim Erreichen der Vorverkaufsquote)
Die FERTIGSTELLUNG erfolgt ca. im 05/2027

Gerne übermitteln wir Ihnen die DETAILUNTERLAGEN mit allen verfügbaren Grundrissen, der Bau- und Ausstattungsbeschreibung und die Preisliste. Die Downloadlinks zu den Details sind dann im Exposé enthalten.

FAKTEN:
zentrale ruhige Lage
sehr gute Infrastruktur
2- bis 4-Zimmer
Wohnfläche ca. zw. 48 m² und 140 m²
Terrassen / Balkone / Loggien ca. zw. 6 m² und 30 m²
Gärten ca. zw. 6 m² und 22 m²
Kellerabteile
Wohnraumlüftung mit Wärmerückgewinnung
Fußbodenheizung
Luft-Wasser-Wärmepumpe
Parkettböden
Tiefgarage mit Vorbereitung für E-Ladestation
Freistellplätze
Lift

Kaufpreise Wohnungen ENDVERBRAUCHER ab EUR 267.025.-
Kaufpreis Tiefgaragenplatz ENDVERBRAUCHER EUR 29.000.-

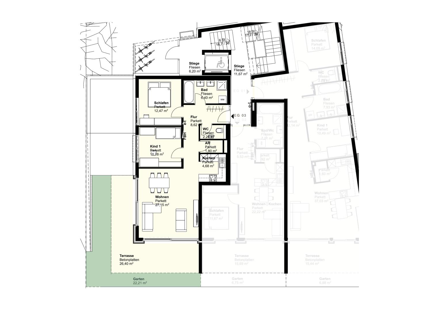
AUFTEILUNG Wohnung EG03:
Flur
Wohnen / Essen
Schlafzimmer
Kinderzimmer / Büro
Bad mit Badewanne und Dusche
Abstellraum
WC

Terrasse
Gartenanteil
Kellerabteil
Tiefgaragenplatz (gegen Aufpreis)

ALLGEMEINE FLÄCHEN:
Fahrradraum / Kinderwagenraum

LAGE – INFRASTRUKTUR
Laakirchen ist eine Stadtgemeinde im Bezirk Gmunden mit ca. 9.800 Einwohnern.
Billa: ca. 400 m
Zentrum Laakirchen: 500 m
Sportplatz / Freizeitplatz: ca. 100 m
Autobahnanschluss: ca. 4 km
Gmunden: ca. 8 km

Auf Wunsch stellen wir gerne einen Kontakt zu einem renommiertem Finanzierungsexperten her.
Dieser findet anhand Ihres Projektes die optimale Bank mit der besten Finanzierung.

Alle m² Angaben sind ca. Angaben.
Der Vermittler ist als Doppelmakler tätig.
Kaufpreise zzgl. Kaufnebenkosten.
Das Angebot ist unverbindlich und freibleibend. Sämtliche Angaben ohne Gewähr ohne Anspruch auf Vollständigkeit.
Eine Zwischenverwertung bleibt vorbehalten.

AKTUELLE IMMOBILIEN-EMPFEHLUNGEN: Neubauwohnungen für Endverbraucher und Anleger in Gmunden, Altmünster, Vöcklabruck und Graz verfügbar. Baugrundstücke in Gallspach und Ohlsdorf. Chalets in Kitzbühel. Stadthaus mit Entwicklungspotenzial in Linz (VERKAUFT). 18 ha Landwirtschaft in Altmünster. Einmalige Seeliegenschaft am Attersee und Traunsee mit direktem Seezugang, Steg und Bootshaus. Einzigartiges Anwesen in Zentrumsnähe von Salzburg. Weitere Off-Market Immobilien – auch Hotels und Gewerbeimmobilien – verfügbar!

Angaben gemäß gesetzlichem Erfordernis:
Heizwärmebedarf: 30.0 kWh/(m²a)
Klasse Heizwärmebedarf: B
Faktor Gesamtenergieeffizienz: 0.47
Klasse Faktor Gesamtenergieeffizienz: A++

Daten & Fakten

4663
Laakirchen
74.16 m² Wohnfläche
3,0 Zimmer
Nr. 3775/1507
370.800,00

Weitere interessante Immobilien

4813
Altmünster
49.81 m² Wohnfläche
2,0 Zimmer
Nr. 3775/1602
259.000,00
4910
Ried im Innkreis
905.0 m² Grundstücksfläche
6,0 Zimmer
Nr. 3775/1600
220.500,00
4511
Allhaming
231.9 m² Wohnfläche
800.0 m² Grundstücksfläche
10,0 Zimmer
Nr. 3775/1599
1.850,00

Wir freuen uns
über Ihre Anfrage zu diesem Objekt

Christian Weixelbaum, Immobilienmakler

Christian Weixelbaum
T: +43 650 44 44 025
E: office@bestliving.at

BEST LIVING Immobilien GmbH
Bruckhofstraße 10a
4600 Thalheim bei Wels

Teilen Sie diese Seite gerne auf den folgenden Kanälen

Seite teilen