ANLEGERWOHNUNG mit Blick auf den Schlosspark & Traunstein – 2-Zimmer – große Loggia – zentral in Altmünster – NEUBAU

ANLEGERWOHNUNG mit Blick auf den Schlosspark & Traunstein – 2 Minuten zum See

IHRE ANLEGER-RESIDENZ am TRAUNSEE – PROVISIONSFREI

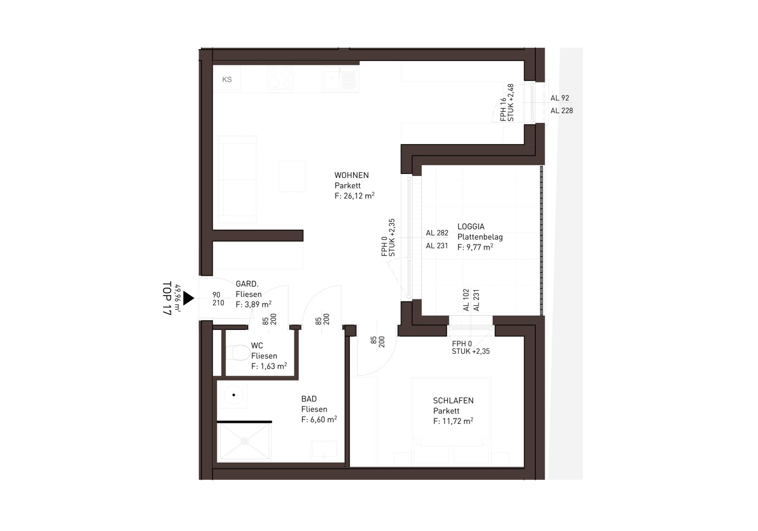
Die 2-Zimmer-Wohnung, mit ca. 50 m², ist im 2. Obergeschoss situiert und befindet sich im vorderen Baukörper (Haus 2). Der kompakte Grundriss ist optimal geplant und bietet ein Wohnzimmer mit ausreichend Platz für eine Wohnküche, eine Couch und einen gemütliche Sitzecke am Fenster. Anschließend an das Wohnzimmer und das Schlafzimmer befindet sich die Richtung Schlosspark und Traunsee ausgerichtete ca. 8,32 m² große Loggia.

INFORMATIONEN ZUM PROJEKT:

DEM LEBEN EINE NEUE MITTE GEBEN
Altmünster am Traunsee ist ein Ort, an dem es sich gut leben lässt. In bester Lage am Rand des noblen Villenviertels entsteht das neue Gebäude entsprechend zeitgemäßen Wohnbedürfnissen. Es bietet ein Leben mit Seegefühl und teilweise unverbaubarem Blick ins Grün des Schlossparks und die Bergwelt rund um den Traunsee – und das mitten im Zentrum.

WOHNTRÄUME ENTDECKEN – DAS LEBEN VEREDELN
Die 24 Schlosspark-Residenzen beeindrucken mit hochwertiger Ausstattung, idealen Grundrissen und wahlweise Park- oder Seeblick. Wählen Sie einfach Ihr bevorzugtes Stockwerk und finden Sie in der Tabelle unten die dort befindlichen Appartements samt Angaben zum Ausblick. Ohne Auswahl werden alle Einheiten angezeigt. Ein Raum mehr, eine Trennwand weniger, ein zweites Bad oder zwei Tops zusammenlegen? Sprechen Sie uns an, wir sind für Sie da!
Aufgeteilt auf zwei architektonisch anspruchsvolle Baukörper finden sich exklusive Eigentumswohnungen von rund 50 bis 121 m² – allesamt mit reizvollem Seepanorama-, partiellem See- oder Parkblick und ausgestattet mit Terrassen, geräumigen Balkonen oder auch spektakulären Dachterrassen!

ARCHITEKTUR
Edler Ansatz in modernem Design.

OASEN ZUM TRÄUMEN
Größer denken. Das beginnt in den Schlosspark-Residenzen auf den großzügigen Balkonen und Terrassen, die einen einzigartigen Blick auf die Bergwelt um den Traunsee und ins Grüne bieten. Und das alles mitten im Zentrum und trotzdem in ruhiger Lage. Der richtige Ort, um sich ein gemütliches Gläschen zu gönnen und sich den nächsten Tag in der Traumwohnung auszumalen!

LEBENSMITTELPUNKT SEE – LEBENSMITTELPUNKT GENUSS
Den Traunsee zeichnet eine besondere Vielfalt aus – die einzelnen Seegemeinden sind auch mit den Schiffslinien gut zu erreichen, die gute Anbindungen ins benachbarte Gmunden oder nach Traunkirchen und Ebensee bieten und auch zahlreiche kulinarische Angebote am See ansteuern. Traunsee und Kulinarik sind unmittelbar miteinander verbunden. Ob Haubenlokal oder uriges Fischrestaurant, Pizzeria am Seeufer oder Tapasbar mit Gebirgsblick – Altmünster macht jedem Geschmack ein Angebot.

ZENTRALLAGE MIT RUHEPANORAMA
Wenige Minuten ins Zentrum Altmünster und zu Fuß zum Traunsee.
Fußläufig zu zahlreichen Gastronomiebetrieben. Eine Wohnung in den Schlosspark-Residenzen bietet alles was das Herz begehrt!

Die Entscheidung für eine Schlosspark-Residenz ist eine Entscheidung für neue Ansprüche im Leben. In einer Lage, wie sie bereits die Träger edler Namen wie Maximilian Joseph Habsburg d´Este, Erzherzogin Maria Theresia oder auch verschiedene Prinzen aus dem Hause Bourbon genossen. Folgerichtig erleben Bewohner der Residenzen am Schlosspark das unvergleichliche Lebensgefühl an einem der schönsten Seen Österreichs auf eine klassisch-erhabene Weise, die auch von den genannten ehemaligen Eigentümern des direkt benachbarten Schlosses Ebenzweier gepflegt wurde.

Bester Werterhalt dank hochwertiger Ausführung und zentraler Lage.
Kaufpreismodelle für ENDVERBAUCHER und ANLEGER verfügbar.
Beim Kauf einer ANLEGER-Wohnung übernehmen wir die kostenlose Vermarktung mit ERSTVERMIETUNG-GARANTIE.

Der BAUSTART ist erfolgt!
Die FERTIGSTELLUNG erfolgt Anfang 2027. Eventuell früher.

Gerne übermitteln wir Ihnen die DETAILUNTERLAGEN mit allen verfügbaren Grundrissen, der Bau- und Ausstattungsbeschreibung und die Preisliste. Weitere Impressionen finden Sie auch gerne auf der Projektwebseite: www.wohnen-am-schlosspark.at

FAKTEN:
+ 24 Appartements aufgeteilt auf 2 Baukörper
+ Wohnflächen von ca. 48 bis 220 m²
+ 2- bis 4-Zimmer
+ Atemberaubende Penthouse-Wohnungen
+ Weitläufige Terrassen mit Eigengärten / teilweise Dachgärten + Großzügige Balkone
+ Liftanlage (barrierefrei)
+ Moderne Architektur
+ ca. 2 Minuten zu Fuß bis zum Traunsee
+ Zentrale Lage – ausgezeichnete Infrastruktur
+ Fußbodenheizung
+ Kühlung über Fußbodenheizung
+ Wärmepumpe
+ Tiefgarage mit Vorbereitung E-Ladestationen

KAUFPREIS Top 17 ANLEGER netto 371.085,62 zzgl. 20 % USt.

Kaufpreise Wohnungen ENDVERBRAUCHER ab EUR 297.600.-
Kaufpreise Wohnungen ANLEGER netto ab EUR 266.352 zzgl. 20 % USt.

Kaufpreis Tiefgaragenplatz ENDVERBRAUCHER EUR 29.000.-
Kaufpreis Tiefgaragenplatz ANLEGER netto EUR 26.100.- zzgl. 20 % USt.

AUFTEILUNG Wohnung Top 17:
Garderobe / Gang
Wohnen / Essen
Schlafzimmer
Bad mit Dusche
WC

Loggia
Kellerabteil mit Steckdose

1 Tiefgaragenstellplatz (nicht im Kaufpreis enthalten)

ALLGEMEINE FLÄCHEN:
Waschküche / Trockenraum
Fahrradraum / Kinderwagenraum

LAGE – INFRASTRUKTUR:
Einwohneranzahl: ca. 9.900
Traunsee Promenade: ca. 300 m
Apotheke: ca. 290 m
Nahversorger Spar: ca. 250 m
Bank: ca. 200 m
Zentrum Pfarrkirche: ca. 280 m
Schlosspark: ca. 100 m
Autobahnanschluss Regau: ca. 11 km
Salzburg: ca. 72 km
München: ca. 210 km

Auf Wunsch stellen wir gerne einen Kontakt zu einem renommiertem Finanzierungsexperten her.
Dieser findet anhand Ihrer Wunschimmobilie die optimale Bank mit der besten Finanzierung.

Alle m² Angaben sind ca. Angaben.
Der Vermittler ist als Doppelmakler tätig.
Kaufpreise zzgl. Kaufnebenkosten.
Das Angebot ist unverbindlich und freibleibend. Sämtliche Angaben ohne Gewähr ohne Anspruch auf Vollständigkeit.
Eine Zwischenverwertung bleibt vorbehalten.

IMMOBILIEN-EMPFEHLUNGEN: Neubauwohnungen für Endverbraucher und Anleger in Gmunden, Altmünster, Vöcklabruck und Graz verfügbar. Chalets in Kitzbühel. Stadthaus mit Entwicklungspotenzial in Linz (VERKAUFT). 18 ha Landwirtschaft in Altmünster. Einmalige Seeliegenschaft am Attersee und Traunsee mit direktem Seezugang, Steg und Bootshaus. Laufend neuer Bestand an Off-Market Immobilien wie Zinshäuser, Wohnbauprojekte, Hotels und Gewerbeimmobilien – verfügbar!

Angaben gemäß gesetzlichem Erfordernis:
Heizwärmebedarf: 36.0 kWh/(m²a)
Klasse Heizwärmebedarf: B
Faktor Gesamtenergieeffizienz: 0.74
Klasse Faktor Gesamtenergieeffizienz: A

Daten & Fakten

4813
Altmünster
49.96 m² Wohnfläche
2,0 Zimmer
Nr. 3775/1605
371.085,62

Weitere interessante Immobilien

4840
Vöcklabruck
79.7 m² Wohnfläche
4,0 Zimmer
Nr. 3775/1623
996,25
4810
Gmunden
210.91 m² Wohnfläche
231.0 m² Grundstücksfläche
5,0 Zimmer
Nr. 3775/1620
1.290.000,00

Wir freuen uns
über Ihre Anfrage zu diesem Objekt

Christian Weixelbaum, Immobilienmakler

Christian Weixelbaum
T: +43 650 44 44 025
E: office@bestliving.at

BEST LIVING Immobilien GmbH
Bruckhofstraße 10a
4600 Thalheim bei Wels

Teilen Sie diese Seite gerne auf den folgenden Kanälen

Seite teilen