BÜRO PRAXIS – erweiterbar – gute frequentierte Sichtbarkeit – NEUBAU ZENTRUM Vöcklabruck – Optional Dachgarten

BÜRO PRAXIS etc.

Ausgezeichnete Sichtbarkeit von der Straße.
Kalkuliert mit dem Anlegernettokaufpreis ist sogar eine Rendite von ca. 4.0 % erzielbar!
Es können auch 2 Wohnungen zusammengelegt werden!

Optional stehen verschiedene Grundrissvarianten zur Verfügung.
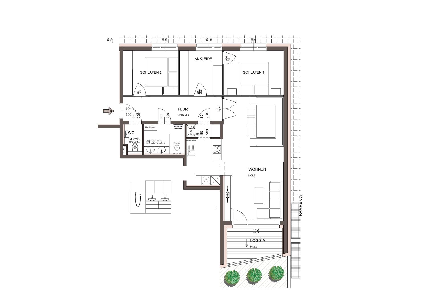
Die 4-Zimmer-Wohnung/Büro/Praxis Top B04 kann, nach Absprache, auch in eine 3-Zimmer-Wohnung/Büro/Praxis transformiert werden. Gerne gehen wir auf Ihre Wünsche individuell ein.

In unmittelbarer Nähe zum Vöcklabrucker Stadtplatz wurden, in Massivbauweise, 41 hochwertige Eigentumswohnungen, errichtet. Die perfekt angelegte Wohnanlage besteht aus 3 Baukörpern inkl. darunter liegender, zweistöckiger Tiefgarage. Die Wohneinheiten sind in hochwertiger Qualität ausgeführt. Das betrifft sowohl die Architektur sowie die Innenausstattung.

Attraktive Architektur und eine barrierefreie Konzeption mit breiten Fluren und großzügigen Liftanlagen sorgen für ansprechenden Wohnkomfort in unmittelbarer Nähe zur historischen Altstadt.

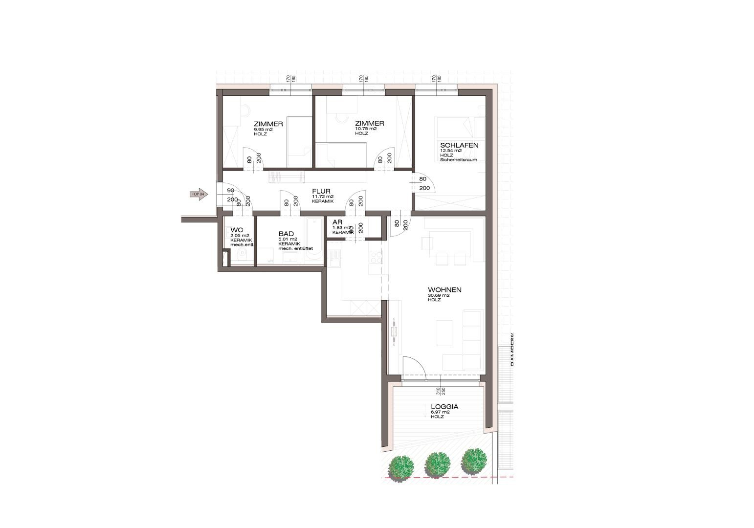
Die 2-4 Zimmer-Eigentumswohnungen teilen sich auf in Wohnungen im Erdgeschoss mit Garten oder Terrasse/Loggia, in den Zwischengeschossen Wohnungen mit Loggien/Balkonen/Terrassen und im Dachgeschoss eindrucksvolle Wohnungen mit Aussicht und begrünter Dachterrasse!

Auf Grund der zentralen Lage, der hochwertigen Bauweise und mit einer erzielbaren Rendite von ca. 4,0 % ist diese Immobilie AUCH als ANLEGERWOHNUNG/BÜRO/PRAXIS bzw. zur ALTERSVORSORGE geeignet. Beim Kauf einer ANLEGER-Wohnung/Büro/Praxis übernehmen wir die Vermarktung bzw. Vermittlung mit ERSTVERMIETUNGS-GARANTIE.

Die LAGE der Immobilie bietet alle Annehmlichkeiten für urbanes Leben und eine optimale Erreichbarkeit des Naherholungsgebietes Traunsee bzw. Salzkammergut.

Die Wohnungen/Büro/Praxis sind bezugsfertig.
Bester Werterhalt dank hochwertiger Ausführung und zentraler Stadtlage.

OPTIONAL kann jeder Wohnung, solange verfügbar, ein herrlicher Dachgarten mit Dachterrasse zugeordnet werden!
Kosten Dachgarten Endverbraucher: EUR 68.000,00
Kosten Dachgarten Anleger: EUR 59.859,15 zzgl. 20 % USt.

Gerne übermitteln wir Ihnen die DETAILUNTERLAGEN mit allen verfügbaren Grundrissen, der Bau- und Ausstattungsbeschreibung und die Preisliste. Weitere Impressionen finden Sie auch gerne auf der Projektwebseite: https://www.voecklabruck-wohnung.at

FAKTEN:
zentrale Lage
ausgezeichnete Infrastruktur
2- bis 4-Zimmer
Wohnfläche ca. zw. 42 m² und 108 m²
Terrassen / Balkone / Loggien ca. zw. 10 m² – 56 m²
Gärten / Dachgärten ca. zw. 16 m² und 96 m²
Fußbodenheizung
Parkettböden
Fernwärme
Lift
Tiefgarage

Kaufpreise Wohnungen ENDVERBRAUCHER ab EUR 185.000.-
Kaufpreise Wohnungen ANLEGER netto ab EUR 162.800.- zzgl. 20 % USt.

Kaufpreis Tiefgaragenplatz ENDVERBRAUCHER EUR 22.900.-
Kaufpreis Tiefgaragenplatz ANLEGER netto EUR 20.150.- zzgl. 20 % USt.

AUFTEILUNG B04:
Flur
Wohnen / Essen / Büro
Schlafzimmer / Büro
Kinderzimmer / Büro
Kinderzimmer / Büro
Abstellraum
Bad mit Badewanne
WC mit Waschbecken

Loggia
Kellerabteil mit Steckdose
10 Tiefgaragenplätze verfügbar (nicht im Kaufpreis enthalten)

ALLGEMEINE FLÄCHEN:
Waschküche / Trockenraum
Fahrradraum / Kinderwagenraum

LAGE – INFRASTRUKTUR:
Einwohneranzahl: ca. 12.500
Kindergarten: ca. 100 m
Volksschule: ca. 200 m
Gymnasium / Hort: ca. 100 m
Apotheke: ca. 250 m
Kinderarzt: ca. 100 m
Bipa: ca. 250 m
Nahversorger: ca. 500 m
Bank: ca. 250 m
Zentrum Stadtplatz: ca. 280 m
Freizeitpark Vöcklabruck: ca. 600 m
Bahnanschluss: ca. 800 m
VARENA Einkaufspark: ca. 1,2 km
Erholungsgebiet Salzkammergut: ca. 17 km
Autobahnanschluss: ca. 9 km

Mitten in Vöcklabruck und trotzdem ruhig gelegen. Dank Tiefgarage ohne Parkplatzsorgen, dafür mit einem vielseitigen kulinarischen Angebot in der näheren Umgebung. Der Stadtplatz ist in nur einer Minute zu erreichen – dort findet man unter anderem das Café Licht&i, das von morgens bis abends ein schönes zweites Wohnzimmer darstellt, das Lokal Brooklyn und viele mehr.

Auf Wunsch stellen wir gerne einen Kontakt zu einem renommiertem Finanzierungsexperten her.
Diese finden anhand Ihrer Wunschimmobilie die optimale Bank mit der besten Finanzierung.
Auch mit geringem Eigenkapital finanzierbar bei entsprechender Bonität!

Alle m² Angaben sind ca. Angaben.
Kaufpreise zzgl. Kaufnebenkosten.
Anlegerpreise zzgl. 20% Ust.

AKTUELLE IMMOBILIEN-EMPFEHLUNGEN: Neubauwohnungen für Endverbraucher und Anleger in Gmunden, Altmünster und Graz verfügbar. Chalets in Kitzbühel. Stadthaus mit Entwicklungspotenzial in Linz (VERKAUFT). 18 ha Landwirtschaft in Altmünster. Einmalige Seeliegenschaft am Attersee und Traunsee mit direktem Seezugang, Steg und Bootshaus. Weitere Off-Market Immobilien – auch Hotels und Gewerbeimmobilien – verfügbar!

Angaben gemäß gesetzlichem Erfordernis:
Heizwärmebedarf: 33.0 kWh/(m²a)
Klasse Heizwärmebedarf: B
Faktor Gesamtenergieeffizienz: 0.74
Klasse Faktor Gesamtenergieeffizienz: A

Daten & Fakten

4840
Vöcklabruck
84.39 m² Nutzfläche
4,0 Zimmer
Nr. 3775/1523
319.440,00

Weitere interessante Immobilien

4813
Altmünster
49.81 m² Wohnfläche
2,0 Zimmer
Nr. 3775/1602
259.000,00
4910
Ried im Innkreis
905.0 m² Grundstücksfläche
6,0 Zimmer
Nr. 3775/1600
220.500,00
4511
Allhaming
231.9 m² Wohnfläche
800.0 m² Grundstücksfläche
10,0 Zimmer
Nr. 3775/1599
1.850,00

Wir freuen uns
über Ihre Anfrage zu diesem Objekt

Christian Weixelbaum, Immobilienmakler

Christian Weixelbaum
T: +43 650 44 44 025
E: office@bestliving.at

BEST LIVING Immobilien GmbH
Bruckhofstraße 10a
4600 Thalheim bei Wels

Teilen Sie diese Seite gerne auf den folgenden Kanälen

Seite teilen