EIN AUSSERGEWÖHNLICHER Mix – Penthouse-Wohnung mit TERRASSE, BALKON & GARTEN – Seeblick – Kaufoption

ZWEITWOHNSITZ.

Panoramablick, weitläufig, hell, komfortabel, Terrasse, Balkon, Garten und exklusiv ausgestattet. Ein außergewöhnlicher Mix.

Eingebettet in einen Hang liegt dieses wunderschöne und architektonisch ansprechende Neubauprojekt in Gmunden.
Die Stadt bietet eine ausgezeichnete Lebensqualität für alle Generationen. Die kleine aber feine Wohnanlage offeriert alle modernen Annehmlichkeiten wie Lift, Tiefgarage, Wohnraumlüftung, Luftwärmepumpe u.v.m. Die ruhige Lage und eine sehr gute Verkehrsanbindung sind weitere Pluspunkte.

Im diesem modernen Neubauprojekt wurden, in ziegelmassivbauweise, insgesamt 6 hochwertige Wohneinheiten errichten.
2 Wohnungen im Erdgeschoss (erhöht durch die Hanglage), 2 Wohnungen im 1. OG und jeweils 1 traumhafte Penthouse-Wohnung im 2. OG und im Dachgeschoss.

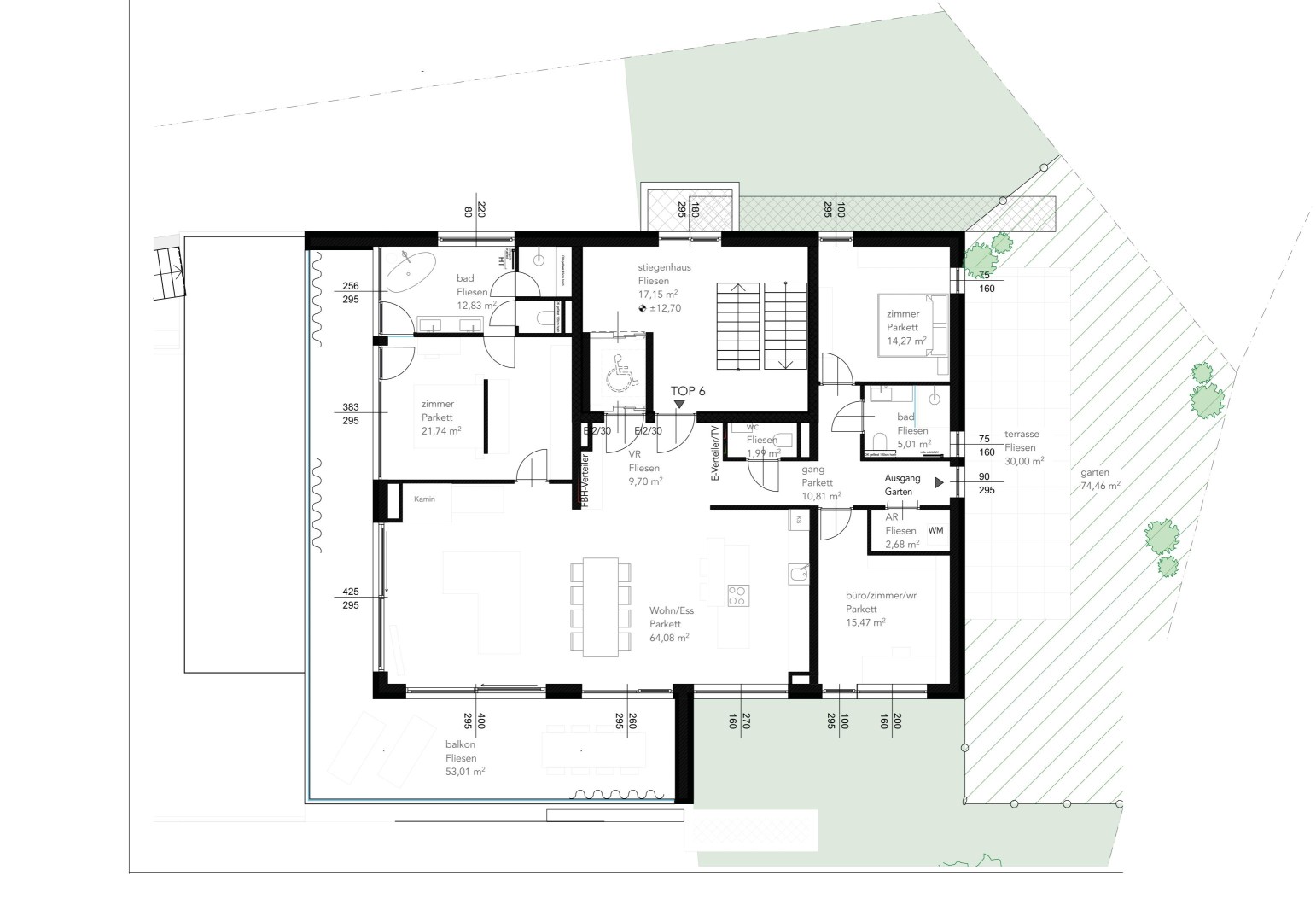
Das ca. 159 m² große 4-Zimmer-Penthouse ist etwas für Genießer, Individualisten oder auch für Familien welche auf viel Platz und einen strukturierten Eltern-Kind-Bereich Wert legen. Die Penthouse ist so aufgeteilt, dass man dieses wie 2 getrennte Wohneinheiten nutzen kann. Daher stehen auch 2 luxuriöse Bäder zur Verfügung. Das „Elternbad“ en Suite ist mit einer begehbaren Dusche, einer Badewanne, einem Doppelwaschbecken und exklusiv Materialien ausgestattet. Das absolute Highlight der Immobilie ist das mit Fischgrätparkett ausgestattete ca. 64 m² große Wohnzimmer mit Wohnküche. Das Wohnzimmer mit Seeblick – übrigens wirklich beeindruckend, das Elternschlafzimmer und das Elternbad haben Aussichtslage und jeweils Zugang zum ca. 53 m² großen Balkon. Die Immobilie hat aber noch mehr zu bieten! Nämlich trotz der Penthouse-Lage einen ca. 74 m² Eigengarten mit einer ca. 30 m² großen Terrasse.

Die Erstbezugswohnung wird mit einer hochwertigen neuen Küche ausgestattet und ist ab sofort beziehbar.
Die GESAMTMIETE versteht sich INKL. Betriebs- und Heizkosten UND 2 Tiefgaragenplätze.
Es sind keine Haustiere gestattet.

Insgesamt stehen 3 Mietwohnungen mit ca. 90 m² – 159 m² zur Verfügung!

Die WOHNUNGEN stehen auch zum KAUF oder in einer Kombination aus Miete (wird zum Teil angerechnet) und späterer Kaufoption zur Verfügung.

Die Gründung eines Zweitwonsitzes ist zulässig!

FAKTEN:
+ traumhafte Penthouse-Wohnungen mit Seeblick
+ großzügige Terrassen, Balkone oder Loggien
+ Markisen / Raffstores / Outdoorvorhänge
+ Tiefgaragenparkplätze
+ Liftanlage (barrierefrei)
+ ansprechende Architektur
+ sehr gute Infrastruktur
+ Fußbodenheizung
+ Luftwärmepumpe
+ hauseigene PV-Anlage am Dach für Wärme- und Kühlenergie
+ Vorbereitung E-Ladestation in der Garage
+ Gegensprechanlage mit Video
+ Wohnungslüftungsanlage mit Wärmerückgewinnung
+ Vorbereitung mit für Klimatisierung (im Penthouse inkl. Klimaanlage)

verfügbare Miet- und KaufWOHNUNGEN:
Top 3 – 1. OG – 96,87 m² – Balkon 35,24 m²
Top 5 – 2. OG – Penthouse – 158,70 m² – Terrasse 86,44 m²
Top 6 – DG – Penthouse – 158,90 m² – Balkon 53,01 m² – Garten + Terrasse 104,46 m²

AUFTEILUNG Penthouse:
Vorraum / Gang
Wohnen / Essen
Schlafzimmer, Schrankbereich
Zimmer / Büro / Schrankraum
Zimmer / Büro / Schrankraum
Bad mit Dusche und WC
Bad mit begehbarer Dusche, Badewanne und separatem WC
Abstellraum mit Waschmaschinenanschluss
WC

Eigengarten, Terrasse, Balkon
Kellerabteil mit Steckdose
2 Tiefgaragenstellplätze

ALLGEMEIN-FLÄCHEN:
Fahrradabstellraum
Besucherparkplätze
Spielplatz

LAGE – INFRASTRUKTUR:
Einwohneranzahl Gmunden: ca. 13.200
Traunsee Promenade: ca. 1 km
Zentrum Gmunden: ca. 1 km
Nahversorger Spar: ca. 190 m (fussläufig)
Naherholung Krottensee: ca. 500 m (fussläufig)
Bergbahn Grünberg: ca. 1,3 km
Autobahnanschluss Regau: ca. 10 km
Linz: ca. 68 km
Salzburg: ca. 80 km
München: ca. 218 km
Wien: ca. 220 km

Alle m² Angaben sind ca. Angaben.
Der Vermittler ist nicht als Doppelmakler tätig. Die Immobilienvermittlung erfolgt auf Grund des Bestellerprinzips PROVISIONSFREI.

Provision BEI KAUF:
Der Vermittler ist als Doppelmakler tätig.
Provisionspflichtige Immobilie.
3 % Vermittlungsprovision vom tatsächlichen Gesamtkaufpreis zzgl. 20 % USt.
Kaufpreise zzgl. Kaufnebenkosten.
Anlegerpreise sind Nettopreis zzgl. 20 % USt.
Das Angebot ist unverbindlich und freibleibend. Sämtliche Angaben ohne Gewähr ohne Anspruch auf Vollständigkeit.
Eine Zwischenverwertung bleibt vorbehalten.

Auf Wunsch stellen wir gerne einen Kontakt zu einem renommiertem Finanzierungsexperten her.
Dieser findet anhand Ihrer Wunschimmobilie die optimale Bank mit der besten Finanzierung.

IMMOBILIEN-EMPFEHLUNGEN: Neubauwohnungen für Endverbraucher und Anleger in Gmunden, Altmünster, Vöcklabruck und Graz verfügbar. Chalets in Kitzbühel. Stadthaus mit Entwicklungspotenzial in Linz (VERKAUFT). 18 ha Landwirtschaft in Altmünster. Einmalige Seeliegenschaft am Attersee und Traunsee mit direktem Seezugang, Steg und Bootshaus. Wir verfügen laufend über neuen Bestand an Off-Market Immobilien wie Zinshäuser, Wohnbauprojekte, Hotels und Gewerbeimmobilien – österreichweit!

Angaben gemäß gesetzlichem Erfordernis:
Miete 3200 zzgl 10% USt.
Betriebskosten 795,98
Autoabstellplatz 286,04
Umsatzsteuer 320
——————————————————————
Gesamtbetrag 4602,02
——————————————————————
Heizwärmebedarf: 40.3 kWh/(m²a)
Klasse Heizwärmebedarf: B
Faktor Gesamtenergieeffizienz: 0.73
Klasse Faktor Gesamtenergieeffizienz: A

Daten & Fakten

4810
Gmunden
158.9 m² Wohnfläche
4,0 Zimmer
Nr. 3775/1558
3.200,00

Dateien

Weitere interessante Immobilien

4813
Altmünster
49.81 m² Wohnfläche
2,0 Zimmer
Nr. 3775/1602
259.000,00
4910
Ried im Innkreis
905.0 m² Grundstücksfläche
6,0 Zimmer
Nr. 3775/1600
220.500,00
4511
Allhaming
231.9 m² Wohnfläche
800.0 m² Grundstücksfläche
10,0 Zimmer
Nr. 3775/1599
1.850,00

Wir freuen uns
über Ihre Anfrage zu diesem Objekt

Christian Weixelbaum, Immobilienmakler

Christian Weixelbaum
T: +43 650 44 44 025
E: office@bestliving.at

BEST LIVING Immobilien GmbH
Bruckhofstraße 10a
4600 Thalheim bei Wels

Teilen Sie diese Seite gerne auf den folgenden Kanälen

Seite teilen