Hofseitige süd-west Loggia – NEUBAU – ZENTRUM Vöcklabruck – 3-Zimmer – Optional mit Dachgarten

JETZT mit der NUR NOCH bis 30.06.2026 gültigen Verordnung GELD SPAREN. Unter bestimmten Voraussetzungen vom ENTFALL der GRUNDBUCHEINTRAGUNGSGEBÜHREN (auch Bankdarlehen) profitieren. Weitere Details gerne auf Anfrage oder im beigefügten Informationsblatt.

In unmittelbarer Nähe zum Vöcklabrucker Stadtplatz wurden, in Massivbauweise, 41 hochwertige Eigentumswohnungen, errichtet. Die perfekt angelegte Wohnanlage besteht aus 3 Baukörpern inkl. darunter liegender, zweistöckiger Tiefgarage. Die Wohneinheiten sind in hochwertiger Qualität ausgeführt. Das betrifft sowohl die Architektur sowie die Innenausstattung.

Attraktive Architektur und eine barrierefreie Konzeption mit breiten Fluren und Liftanlagen sorgen für ansprechenden Wohnkomfort in unmittelbarer Nähe zur historischen Altstadt.

Die zentral gelegenen 2-4 Zimmer-Eigentumswohnungen teilen sich auf in Wohnungen im Erdgeschoss mit Garten oder Terrasse/Loggia, in den Zwischengeschossen Wohnungen mit Loggien/Balkonen/Terrassen und im Dachgeschoss eindrucksvolle Wohnungen mit Aussicht und begrünter Dachterrasse!

Ein echtes Highlight der Anlage stellen die Penthouse-Wohnungen dar, die neben geräumigen Loggien teilweise auch über begrünte Dachgärten und Dachterrassen verfügen. Ein herrlicher Ausblick über die Dächer von Vöcklabruck wird geboten!

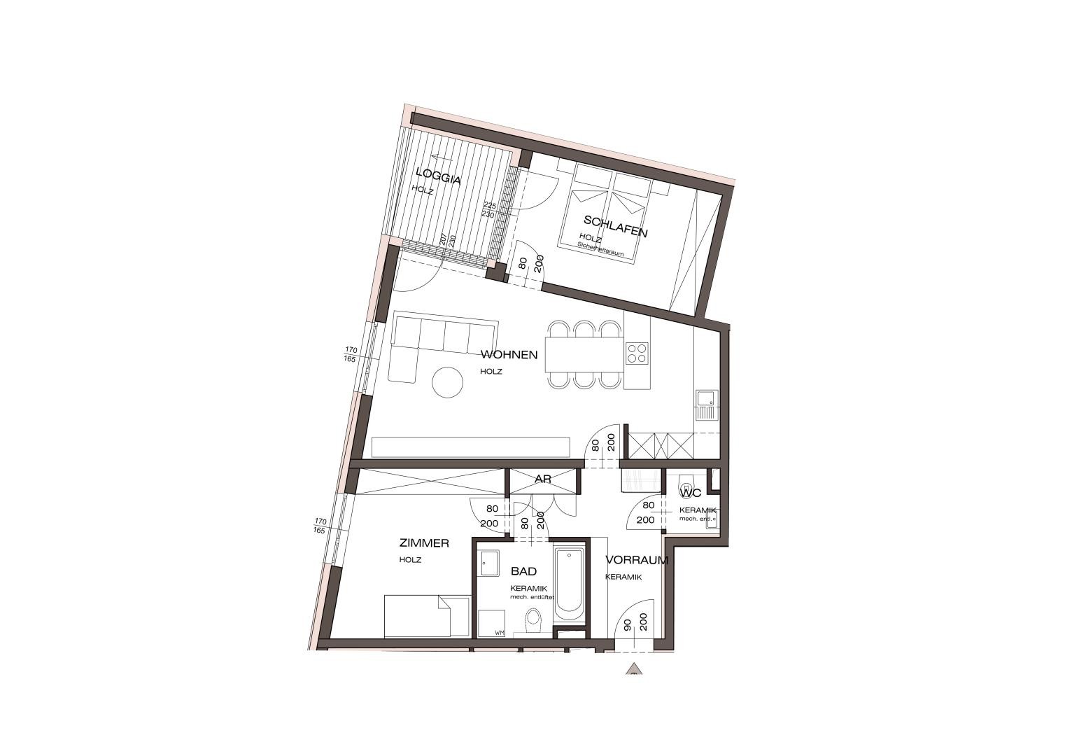
Der GRUNDRISS dieser 3-Zimmer-Wohnung befindet sich im Baukörper C und beinhaltet alle Elemente die eine moderne Eigentumswohnung haben muss. Die Wohnung ist hofseitig ausgerichtet, hat 2 Schlafzimmer, ein Bad mit Badewanne und ein Wohnzimmer mit Wohnküche. Das Highlight der Wohnung ist das großzügige Wohnzimmer, welches Platz für eine gemütliche Couch und einen großen Esstisch bietet. Anschließend befindet sich die süd-westseitig ausgerichtete Loggia.

Auf Grund der zentralen Lage, der hochwertigen Bauweise und mit einer soliden Rendite ist die Immobilie AUCH als ANLEGERWOHNUNG bzw. zur ALTERSVORSORGE geeignet. Beim Kauf einer ANLEGER-Wohnung übernehmen wir die Vermarktung bzw. Vermittlung der ERSTVERMIETUNG kostenlos.

Die LAGE der Immobilie bietet alle Annehmlichkeiten für urbanes Leben und eine optimale Erreichbarkeit des Naherholungsgebietes Traunsee bzw. Salzkammergut.

Die Wohnungen sind bezugsfertig.
Bester Werterhalt dank hochwertiger Ausführung und zentraler Stadtlage.

OPTIONAL kann jeder Wohnung, solange verfügbar, ein herrlicher Dachgarten mit Dachterrasse zugeordnet werden!
Kosten Dachgarten Endverbraucher: EUR 68.000,00
Kosten Dachgarten Anleger: EUR 59.859,15 zzgl. 20 % USt.

Gerne übermitteln wir Ihnen die DETAILUNTERLAGEN mit allen verfügbaren Grundrissen, der Bau- und Ausstattungsbeschreibung und die Preisliste. Weitere Impressionen finden Sie auch gerne auf der Projektwebseite: https://www.voecklabruck-wohnung.at

FAKTEN:
zentrale Stadtlage
ausgezeichnete Infrastruktur
2- bis 4-Zimmer
Wohnfläche ca. zw. 42 m² und 108 m²
Terrassen / Balkone / Loggien ca. zw. 10 m² – 56 m²
Gärten / Dachgärten ca. zw. 16 m² und 96 m²
Fußbodenheizung
Parkettböden
Fernwärme
Lift
Tiefgarage mit Vorbereitung E-Ladestation

Kaufpreise Wohnungen ENDVERBRAUCHER ab EUR 185.000.-
Kaufpreise Wohnungen ANLEGER netto ab EUR 162.800.- zzgl. 20 % USt.

Kaufpreis Tiefgaragenplatz ENDVERBRAUCHER EUR 22.900.-
Kaufpreis Tiefgaragenplatz ANLEGER netto EUR 20.150.- zzgl. 20 % USt.

AUFTEILUNG Wohnung C29:
Vorraum
Wohnen / Essen
Schlafzimmer
Kinderzimmer / Büro
Bad mit Badewanne
WC mit Waschbecken
Abstellnische

Loggia
Kellerabteil mit Steckdose
Tiefgaragenplatz (nicht im Kaufpreis enthalten)

ALLGEMEINE FLÄCHEN:
Waschküche / Trockenraum
Fahrradraum / Kinderwagenraum

LAGE – INFRASTRUKTUR:
Einwohneranzahl: ca. 12.500
Kindergarten: ca. 100 m
Volksschule: ca. 200 m
Gymnasium / Hort: ca. 100 m
Apotheke: ca. 250 m
Kinderarzt: ca. 100 m
Bipa: ca. 250 m
Nahversorger: ca. 500 m
Bank: ca. 250 m
Zentrum Stadtplatz: ca. 280 m
Freizeitpark Vöcklabruck: ca. 600 m
Bahnanschluss: ca. 800 m
VARENA Einkaufspark: ca. 1,2 km
Erholungsgebiet Salzkammergut: ca. 17 km
Autobahnanschluss: ca. 9 km

Mitten in Vöcklabruck und trotzdem ruhig gelegen. Dank Tiefgarage ohne Parkplatzsorgen, dafür mit einem vielseitigen kulinarischen Angebot in der näheren Umgebung. Der Stadtplatz ist in nur einer Minute zu erreichen – dort findet man unter anderem das Café Licht&i, das von morgens bis abends ein schönes zweites Wohnzimmer darstellt, das Lokal Brooklyn und viele mehr.

Auf Wunsch stellen wir gerne einen Kontakt zu einem renommiertem Finanzierungsexperten her.
Dieser findet anhand Ihrer Wunschimmobilie die optimale Bank mit der besten Finanzierung.

Alle m² Angaben sind ca. Angaben.
Kaufpreise zzgl. Kaufnebenkosten.

AKTUELLE IMMOBILIEN-EMPFEHLUNGEN: Neubauwohnungen für Endverbraucher und Anleger in Gmunden, Altmünster und Graz verfügbar. Chalets in Kitzbühel. Stadthaus mit Entwicklungspotenzial in Linz (VERKAUFT). 18 ha Landwirtschaft in Altmünster. Einmalige Seeliegenschaft am Attersee und Traunsee mit direktem Seezugang, Steg und Bootshaus. Weitere Off-Market Immobilien – auch Hotels und Gewerbeimmobilien – verfügbar!

Angaben gemäß gesetzlichem Erfordernis:
Heizwärmebedarf: 33.0 kWh/(m²a)
Klasse Heizwärmebedarf: B
Faktor Gesamtenergieeffizienz: 0.74
Klasse Faktor Gesamtenergieeffizienz: A

Daten & Fakten

4840
Vöcklabruck
70.87 m² Wohnfläche
3,5 Zimmer
Nr. 3775/1297
372.757,00

Weitere interessante Immobilien

4840
Vöcklabruck
71.62 m² Wohnfläche
3,5 Zimmer
Nr. 3775/1627
916,74

Wir freuen uns
über Ihre Anfrage zu diesem Objekt

Christian Weixelbaum, Immobilienmakler

Christian Weixelbaum
T: +43 650 44 44 025
E: office@bestliving.at

BEST LIVING Immobilien GmbH
Bruckhofstraße 10a
4600 Thalheim bei Wels

Teilen Sie diese Seite gerne auf den folgenden Kanälen

Seite teilen