Optimale 3-Zimmer ANLEGERWOHNUNG oder ALTERSVORSORGE – zentral & in nur 3 Minuten zum SEE

Zentral & IN nur 3 MINUTEN ZUM SEE.

Die Wohnungen eignen sich, auf Grund der hochwertigen Bauweise, der starken Nachfrage nach Wohnraum in Altmünster und der zentralen Lage, hervorragend als ANLAGEOBJEKT zur Vermietung bzw. zur ALTERSVORSORGE. Die erzielbare Rendite von ca. 3,67 % ist eine optimale Basis. Eine 3-Zimmer Wohnung eignet sich sowohl für Singles, für Paare oder eine kleine Familie. Beim Kauf einer ANLEGER-Wohnung übernehmen wir die Vermarktung bzw. Vermittlung mit ERSTVERMIETUNGS-GARANTIE.

Der Kaufpreis beträgt EUR 288.360 zzgl. 20 % USt. Beim Kauf einer Anlegerwohnung ist der Vorsteuerabzug möglich, da die Vermietung als umsatzsteuerpflichtige Tätigkeit gilt. Für eine Anlegerwohnung können Sie außerdem die Anschaffungs- und Herstellungskosten über die jährliche Abschreibung (AfA) steuerlich geltend machen. Zusätzlich können Sie Werbungskosten wie Zinsen, Betriebskosten und Verwaltungskosten abziehen, was die Rendite steigert! Ebenso wird die Rendite durch die Indexierung des Mietvertrages über die Jahre weiter optimiert!

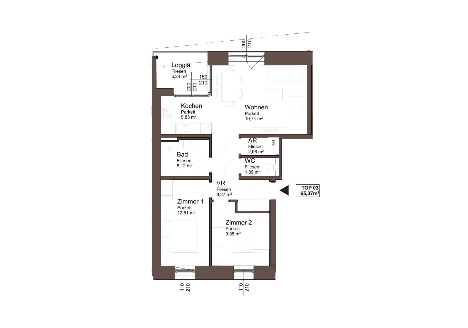
Die ca. 65 m² große Wohnung Top 3 ist im 1. Obergeschoss situiert. Die Immobilie verfügt über 2 Schlafzimmer – ein Bad mit einer Dusche, eine separate Toilette und einen Abstellraum. Anschließend an das Wohnzimmer mit Wohnküche befindet sich die nach Süd-West ausgerichtete Loggia.

Altmünster bietet eine ausgezeichnete Lebensqualität für alle Generationen. Die kleine aber feine und süd-west ausgerichtete Wohnanlage offeriert alle modernen Annehmlichkeiten wie Lift und Carports. Beheizt wird optimal über die örtliche Nahwärme. Die seenahe Lage (nur ca. 3 Gehminuten zum Traunsee) und die ausgezeichnete Infrastruktur- und Verkehrsanbindung sind weitere Pluspunkte.

In diesem Neubauprojekt, in Idyllischer Lage am Ebenzweierbach werden, in massivbauweise, insgesamt 6 hochwertige Wohneinheiten ca. zw. 49 m² und 86 m² errichten. Es stehen 2 Wohnungen im Erdgeschoss, 2 Wohnungen im 1. OG und jeweils 2 Wohnungen im 2. OG zur Verfügung. Die Wohnungen sind jeweils entweder mit einer Loggia, einem Balkon, einer Terrasse und/oder mit einem Garten ausgestattet.

Der BAUBEGINN ist für Q1 2026 geplant. Die Fertigstellung erfolgt Q1 / Q2 2027.

RAUM-AUFTEILUNG Top 3:
Vorraum
Wohnen / Essen
Schlafzimmer
Zimmer / Schrankraum / Büro
Bad
Toilette
Abstellraum
Loggia

Einlagerungsraum
Carport oder Freiparkplatz (nicht im Kaufpreis enthalten)

ALLGEMEIN-FLÄCHEN:
Fahrradabstellraum / Kinderwagenraum
Besucherparkplätze

FAKTEN zum PROJEKT:
+ 6 Wohneinheiten (nur mehr 4 verfügbar)
+ Wohnflächen von ca. 49 bis 86 m²
+ 2- bis 4-Zimmer
+ Massivbauweise
+ zentrale Lage
+ Gärten, Terrassen, Balkone oder Loggien
+ Unterputzkästen – Vorbereitung für Funk-Raffstores
+ Carports und / oder Freiparkplätze
+ Liftanlage (barrierefrei)
+ Fußbodenheizung
+ Heizung – örtliche Nahwärme

Kaufpreise Wohnungen ENDVERBRAUCHER ab EUR 247.000.-
Kaufpreise Wohnungen ANLEGER netto ab EUR 219.830 zzgl. 20 % USt.

Kaufpreis Carport ENDVERBRAUCHER EUR 13.500.-
Kaufpreis Carport ANLEGER netto EUR 12.015.- zzgl. 20 % USt.
Kaufpreis Freiparkplatz ENDVERBRAUCHER EUR 5.900.-
Kaufpreis Freiparkplatz ANLEGER netto EUR 5.251.- zzgl. 20 % USt.

Altmünster, auch nichtamtlich Altmünster am Traunsee, ist eine Marktgemeinde im Bundesland Oberösterreich im Bezirk Gmunden am Traunsee mit ca. 9.900 Einwohnern.

LAGE – INFRASTRUKTUR:
Traunsee: ca. 300 m
Zentrum Altmünster: ca. 600 m
Nahversorger Spar: ca. 600 m
Nahversorger Hofer / Billa: ca. 500 m
Zentrum Gmunden: ca. 3,8 km
Gmundnerberg: ca. 5 km
Autobahnanschluss Regau: ca. 11 km
Linz: ca. 75 km
Salzburg: ca. 80 km
München: ca. 208 km

Auf Wunsch stellen wir Ihnen gerne einen Kontakt zu einem renommiertem Finanzierungsexperten her.
Dieser findet anhand Ihrer Wunschimmobilie die optimale Bank mit der besten Finanzierung.

Alle m² Angaben sind ca. Angaben.
Der Vermittler ist als Doppelmakler tätig.
Provisionsfreie Vermittlung!
Kaufpreise zzgl. Kaufnebenkosten.
Anlegerpreise sind Nettopreis zzgl. 20 % USt.
Das Angebot ist unverbindlich und freibleibend. Sämtliche Angaben ohne Gewähr ohne Anspruch auf Vollständigkeit.
Eine Zwischenverwertung bleibt vorbehalten.

IMMOBILIEN-EMPFEHLUNGEN: Neubauwohnungen für Endverbraucher und Anleger in Gmunden, Altmünster, Vöcklabruck und Graz verfügbar. Chalets in Kitzbühel. Stadthaus mit Entwicklungspotenzial in Linz (VERKAUFT). 18 ha Landwirtschaft in Altmünster. Einmalige Seeliegenschaft am Attersee und Traunsee mit direktem Seezugang, Steg und Bootshaus. Wir verfügen laufend über neuen Bestand an Off-Market Immobilien wie Zinshäuser, Wohnbauprojekte, Hotels und Gewerbeimmobilien – österreichweit!

Angaben gemäß gesetzlichem Erfordernis:
Heizwärmebedarf: 37.0 kWh/(m²a)
Klasse Heizwärmebedarf: B
Faktor Gesamtenergieeffizienz: 0.77
Klasse Faktor Gesamtenergieeffizienz: A

Daten & Fakten

4813
Altmünster
65.37 m² Wohnfläche
3,0 Zimmer
Nr. 3775/1596
288.360,00

Weitere interessante Immobilien

4813
Altmünster
49.81 m² Wohnfläche
2,0 Zimmer
Nr. 3775/1602
259.000,00
4910
Ried im Innkreis
905.0 m² Grundstücksfläche
6,0 Zimmer
Nr. 3775/1600
220.500,00
4511
Allhaming
231.9 m² Wohnfläche
800.0 m² Grundstücksfläche
10,0 Zimmer
Nr. 3775/1599
1.850,00

Wir freuen uns
über Ihre Anfrage zu diesem Objekt

Christian Weixelbaum, Immobilienmakler

Christian Weixelbaum
T: +43 650 44 44 025
E: office@bestliving.at

BEST LIVING Immobilien GmbH
Bruckhofstraße 10a
4600 Thalheim bei Wels

Teilen Sie diese Seite gerne auf den folgenden Kanälen

Seite teilen